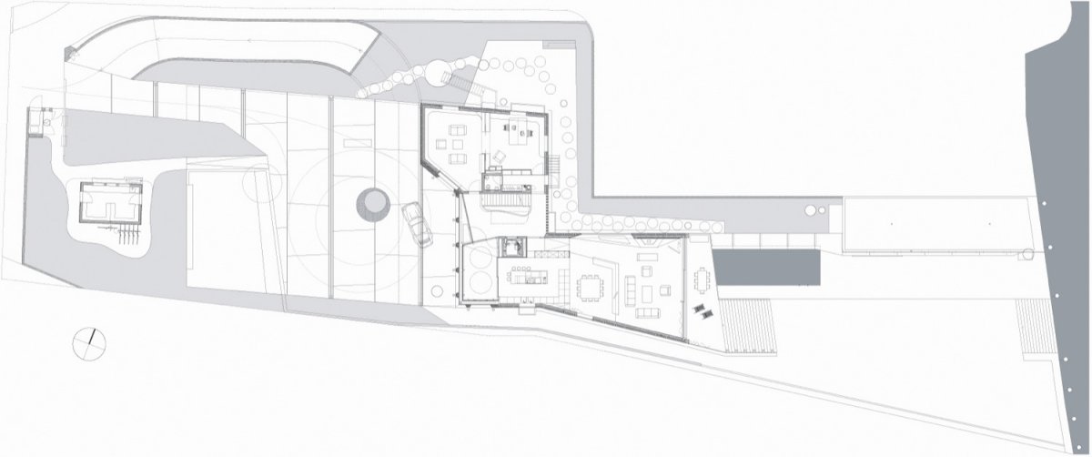
Superbe villa baptisée “O House”, issue de la collaboration entre les architectes Philippe Stuebi et Eberhard Tröger. Construite dans la région de Vierwaldstättersee en Suisse, cette villa possède un style résolument moderne avec quelques pointes tirés des seventies. Un parking souterrain impressionnant de par sa grandeur et sa collection de Ferrari ainsi qu’une piscine extérieure pour une maison exceptionnelle à découvrir.






























Partager sur
Partager sur Twitter Partager sur Facebook Partager sur Google+ Partager sur Pinterest